AQ/T 4117-2011 煙花爆竹 煙火藥作功能力測定方法
- 發表時間:2022-09-15
- 來源:共立消防
- 人氣:
1 范圍
本標準規定了煙花爆竹用煙火藥作功能力測定原理、儀器和材料、測定準備、爆炸擴張鉛墉中心孔試驗、測量擴張后鉛墉中心孔容積和煙火藥作功能力的計算。
本標準適用于煙花爆竹用煙火藥作功能力的測定。
2 規范性引用文件
下列文件對于本文件的應用是必不可少的。凡是注日期的引用文件,僅注日期的版本適用于本文 件。凡是不注日期的引用文件,其最新版本(包括所有的修改單)適用于本文件。
GB/T 7968 紙袋紙
GB 8031 工業電雷管
WJ/T 9030 炸藥作功能力試驗用鉛墉
3 術語和定義
下列術語和定義適用于本標準。
3.1
煙火藥作功能力 pyrotechnics strength
煙火藥作功能力是指煙火藥爆炸時對周圍介質所作的總的機械功
4 測定原理
在規定參量(質量、密度和幾何尺寸)的條件下,煙火藥爆炸時對鉛墉中心孔進行擴張,以鉛墉中心 孔擴張的容積來衡量煙火藥的作功能力。煙火藥不具備爆炸條件時的作功能力為0 mL。
5 儀器和材料
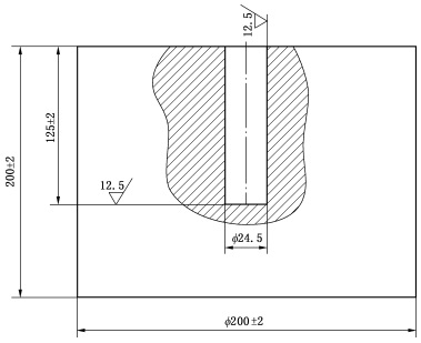
5.1 鉛墉:如圖1所示,應符合WJ/T 9030要求。

圖1 鉛墉
5.3 石英砂:經風干的石英砂,粒度為425 μm?710 μm,堆積密度為1.35 g/cm3-1.37 g/cm3。
5.4 紙袋紙:符合GB/T 7968要求,選用80 g/m2的紙袋紙。
5.5 帶孔圓紙板:外徑23.75 mm±0.25 mm,中心孔徑7.5 mm±0.1 mm(中心孔徑應按8號瞬發金屬殼電雷管外徑調整,以保證電雷管剛好能穿過中心孔),薄紙板厚度1.5 mm?2.0 mm。
5.6 電雷管:符合GB 8031要求,選用8號瞬發金屬殼電雷管。
5.7 起爆器。
6 測定準備
6.1 加工紙筒
將紙袋紙(80 g/m2)紙裁成如圖2所示的直角梯形,從直角邊開始用直徑24 mm的光滑圓棒卷成 圓筒,下底應突出圓棒端面15 mm?20 mm,將突出部分向內折好,形成筒底,并將接縫粘牢。
單位為毫米

圖2 直角梯形紙
6.2 測量擴張前的鉛墉中心孔容積
以水作介質用滴定管測量鉛墉中心孔的容積,擦干鉛墉及中心孔內的水分,用V。表示(精確到 0.1 mL),對鉛墉編號備用。
6.3 煙火藥預處理
發射藥不進行研磨和篩選。
粉狀煙火藥不進行研磨,使煙火藥通過孔徑425 mm的標準篩,如有不能通過的鋁渣、鈦粉等硬質 顆粒,將硬質顆粒一同放入篩過的煙火藥中,混合均勻。
塊狀或粒狀煙火藥,不論是否含有外層的弓I燃藥,均不剝離,直接在銅缽內碾碎、研磨(如有大塊的 紙屑、稻殼應剔除)混合,使煙火藥通過孔徑425 Mm的標準篩,如有不能碾碎的鋁渣、鈦粉等硬質顆粒, 將硬質顆粒一同放入篩過的煙火藥中,混合均勻。
6.4 稱取煙火藥
稱量已預處理的煙火藥10.0 g±0.1 g,放入干燥器中待用。
7 爆炸擴張鉛墉中心孔試驗
7.1 確定警戒線
在爆炸洞內進行爆炸擴張鉛墉中心孔試驗時,設置的警戒線距爆炸洞應>2 m(在野外試驗時,設 置的警戒線距爆炸點應>65 m),起爆器應放置在警戒線以外,清理警戒線內的無關人員,提醒爆炸點 附近的所有人員注意,并派專人進行警戒。
7.2 安裝爆炸擴張鉛墉中心孔的裝置(如圖3所示)

單位為毫米
說明:
1——電雷管線;
2——石英砂;
3——電雷管;
圖3 爆炸擴張鉛墉中心孔裝置示意圖
以上為標準部分內容,如需看標準全文,請到相關授權網站購買標準正版。
-
IG541混合氣體滅火系統
IG541混合氣體滅火系統:IG-541滅火系統采用的IG-541混合氣體滅火劑是由大氣層中的氮氣(N2)、氬氣(Ar)和二氧化碳(CO2)三種氣體分別以52%、40%、8%的比例混合而成的一種滅火劑 -
二氧化碳氣體滅火系統
二氧化碳氣體滅火系統:二氧化碳氣體滅火系統由瓶架、滅火劑瓶組、泄漏檢測裝置、容器閥、金屬軟管、單向閥(滅火劑管)、集流管、安全泄漏裝置、選擇閥、信號反饋裝置、滅火劑輸送管、噴嘴、驅動氣體瓶組、電磁驅動 -
七氟丙烷滅火系統
七氟丙烷(HFC—227ea)滅火系統是一種高效能的滅火設備,其滅火劑HFC—ea是一種無色、無味、低毒性、絕緣性好、無二次污染的氣體,對大氣臭氧層的耗損潛能值(ODP)為零,是鹵代烷1211、130 -
手提式干粉滅火器
手提式干粉滅火器適滅火時,可手提或肩扛滅火器快速奔赴火場,在距燃燒處5米左右,放下滅火器。如在室外,應選擇在上風方向噴射。使用的干粉滅火器若是外掛式儲壓式的,操作者應一手緊握噴槍、另一手提起儲氣瓶上的


