GB/T 32086-2015 特定種類汽車內飾材料垂直燃燒特性技術要求和試驗方法
- 發表時間:2022-11-20
 - 來源:共立消防
 - 人氣:
 
1 范圍
本標準規定了特定種類汽車內飾材料垂直燃燒特性的技術要求和試驗方法。
本標準適用于運載超過22名乘客的M3類汽車內飾用窗簾、遮陽簾和/或其他內部懸掛材料,不適用于有站立乘客的城市客車。
2 術語和定義
下列術語和定義適用于本文件。
2.1
燃燒速度 burning rate
燃燒距離與所用時間的比值,單位為毫米每分(mm/min)。
2.2
內飾材料 interior material
窗簾、遮陽簾和/或其他內部懸掛材料。
3 技術要求
垂直燃燒速度應不大于100mm/min。
4 試驗方法
4.1 原理
將試樣垂直固定到矩形框架上,在燃燒箱中用規定火焰引燃試樣,測定試樣燃燒距離和所用時間。
4.2 試驗裝置及器具
4.2.1 試樣固定架
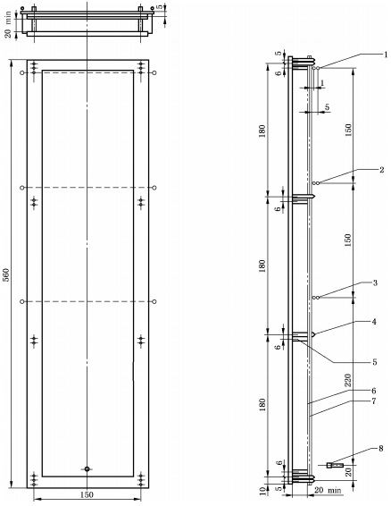
試樣固定架應是一個矩形框架,結構如圖1所示??蚣芨?60mm,由兩根間距為150mm的平行桿連接組成,桿上有固定試樣的固定針。固定針直徑應不大于2mm,長度至少27mm。將試樣固定架安裝在通風櫥內相應支架上,保證固定架在試驗期間始終處于垂直狀態。
為將試樣固定在固定針上,并離框架有一段距離,需在固定針附近安裝直徑為2mm,高度至少為20mm的定位柱。
4.2.2 壓板
使用U形壓板保證試樣在試樣固定架上的垂直平整性。U形壓板應平整且具有剛性,用適當材料制成、尺寸相當于試樣固定架尺寸,厚度為1.0mm±0.1mm。在壓板的左右兩側鉆出直徑大約為4mm的12個圓孔,圓孔位置應保證其圓心間距等于試樣固定架上固定針之間的距離(見圖1)。
4.2.3 燃氣燈
燃氣燈提供試驗火源,其描述和結構需遵照附錄A的規定。
4.2.4 燃氣
燃氣燈使用的燃氣為工業用丙烷氣體、丁烷氣體或液化石油氣。
4.2.5 標記線
白色絲光棉線,線密度最大為50tex。
單位為毫米

說明:
1-第三標記線;
2-第二標記線;
3-第一標記線:
4-固定針:
5-定位柱:
6-試樣;
7-壓板;
8-燃氣燈。
圖1 試樣固定架
4.2.6 秒表
測量時間用秒表精度不低于0.5s。
4.2.7 鋼板尺
鋼板尺量程600mm以上,精度為1mm。
4.2.8 通風櫥
試樣固定架應放在通風櫥中,通風櫥內部容積為試樣固定架體積的20倍~110倍,且通風櫥的長、寬、高的任一尺寸不得超過另外兩個尺寸中任一尺寸的2倍。
試驗前,在距離試樣固定架最終確定位置前后各100mm處測量空氣流過通風櫥的垂直速度,該速度應在0.10m/s~0.30m/s之間。通風櫥可使用自然通風或適當風速通風。
4.3 試樣
4.3.1 尺寸
試樣尺寸為長560mm±2mm,寬170mm±2mm,厚度為零件厚度。
4.3.2 取樣
在經向和緯向分別裁取3塊(或更多)試樣進行燃燒試驗。取樣方法如下:
a)若零件的形狀和尺寸符合取樣要求,試樣應從零件上裁取。
b)若零件的形狀和尺寸不符合取樣要求,可用同材料同工藝制成、結構與零件一致的標準試樣進行試驗。
c)當材料按整個幅寬供貨時,需將距邊緣100mm的材料裁掉,然后在其余部分等距、均勻取樣。
4.3.3 預處理
試樣在溫度為23℃±2℃、相對濕度為50%±5%的標準狀態下放置至少24h,直到開始試驗。
4.4 試驗步驟
4.4.1 在溫度為10℃~30℃、相對濕度為15%~80%的環境條件下進行試驗。
4.4.2 燃氣燈在試樣前下方,位于通過試樣的垂直中心線與試樣表面呈垂直狀態的平面內,燃氣燈中心軸向上傾斜,與試樣所在平面成30°角,燃氣燈頂部和試樣下邊緣的距離為20mm,示意圖如圖2所示。燃氣燈垂直放置時點燃燃氣燈,調節火焰高度至40mm±2mm,該距離是燃氣燈噴嘴口與火焰頂端距離。在開始第一次試驗前,火焰應在此狀態下穩定燃燒至少2min,然后熄滅。
以上為標準部分內容,如需看標準全文,請到相關授權網站購買標準正版。
-  
 IG541混合氣體滅火系統
              IG541混合氣體滅火系統:IG-541滅火系統采用的IG-541混合氣體滅火劑是由大氣層中的氮氣(N2)、氬氣(Ar)和二氧化碳(CO2)三種氣體分別以52%、40%、8%的比例混合而成的一種滅火劑 -  
 二氧化碳氣體滅火系統
              二氧化碳氣體滅火系統:二氧化碳氣體滅火系統由瓶架、滅火劑瓶組、泄漏檢測裝置、容器閥、金屬軟管、單向閥(滅火劑管)、集流管、安全泄漏裝置、選擇閥、信號反饋裝置、滅火劑輸送管、噴嘴、驅動氣體瓶組、電磁驅動 -  
 七氟丙烷滅火系統
              七氟丙烷(HFC—227ea)滅火系統是一種高效能的滅火設備,其滅火劑HFC—ea是一種無色、無味、低毒性、絕緣性好、無二次污染的氣體,對大氣臭氧層的耗損潛能值(ODP)為零,是鹵代烷1211、130 -  
 手提式干粉滅火器
              手提式干粉滅火器適滅火時,可手提或肩扛滅火器快速奔赴火場,在距燃燒處5米左右,放下滅火器。如在室外,應選擇在上風方向噴射。使用的干粉滅火器若是外掛式儲壓式的,操作者應一手緊握噴槍、另一手提起儲氣瓶上的 


