GB/T 2407-2008 塑料 硬質塑料小試樣與熾熱棒接觸時燃燒特性的測定
- 發表時間:2022-11-23
 - 來源:共立消防
 - 人氣:
 
1 范圍
本標準規定了硬質塑料小試樣同熾熱棒接觸時燃燒性能的測定方法。
2 規范性引用文件
下列文件中的條款通過本標準的引用而成為本標準的條款。凡是注日期的引用文件,其隨后所有的修改單(不包括勘誤的內容)或修訂版均不適用于本標準,然而,鼓勵根據本標準達成協議的各方研究是否可使用這些文件的最新版本。凡是不注日期的引用文件,其最新版本適用于本標準。
GB/T 5471-2008 塑料 熱固性塑料試樣的壓塑(ISO 295:2004,IDT)
GB/T 9352-2008 塑料 熱塑性塑料材料試樣的壓塑(ISO 293:2004,IDT)
GB/T 17037.1-1997 熱塑性塑料材料注塑試樣的制備第1部分:一般原理及多用途試樣和長條試樣的制備(ISO 294-1:1996,IDT)
ISO 2818:1994 塑料 機械加工法制備試樣
3 原理
將試樣一端水平地夾持,使試樣自由端與加熱到955℃±15℃的熾熱棒接觸規定時間后,評定試樣的燃燒特性。
4 試驗意義
本標準不適用于評定使用中可能發生的著火危險性。
在本標準所述條件下對材料所做的試驗,對比較各種材料的燃燒特性、檢驗加工工藝,以及作為材料使用前或使用過程中燃燒性能惡化或改變的量度有較大的價值。本試驗是為了質量控制和產品評價設計的,對于非本試驗所規定的條件下材料的性能并無意義,它并不能預測材料在實際燃燒情況下的性能。
5 儀器
5.1 試驗箱
容積約為1m3,帶有通風裝置及觀察窗口。
5.2 試驗裝置
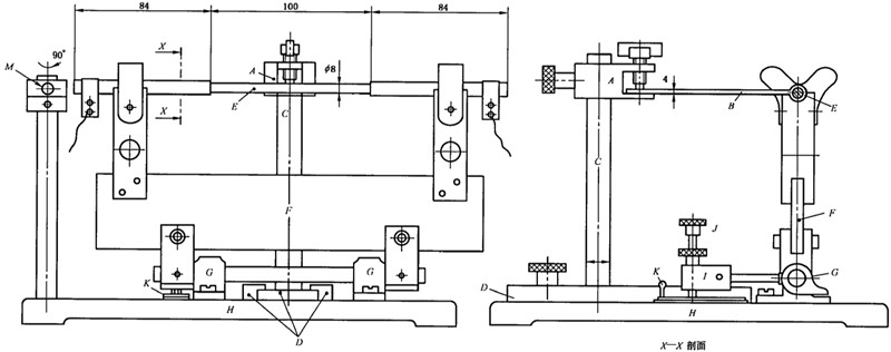
試驗裝置包括下列部件(見圖1)。
5.2.1 夾具
用以固定試樣,如圖1(X-X剖面)所示。固定在有滑動基座的直立支架上端,可試驗不同長度的試樣。
5.2.2 點燃源
帶有金屬觸點的熾熱棒,直徑8mm,長約100mm,可加熱到955℃±15℃。
5.2.3 絕緣(陶瓷或石棉)支架
用于固定熾熱棒,確保熾熱棒在必要時能與試樣分離。
單位為毫米

A一夾具;
B-試樣;
C、F-支架:
D-滑動基座;
E-熾熱棒;
G-軸承;
H-基板;
I一平衡器;
J一制動螺絲;
K-轉動板;
M一定位棒。
5.2.4 平衡器
使熾熱棒與試樣端點接觸時施加約0.3N的力。
5.2.5 制動螺絲
在試樣燒損約5mm之前,熾熱棒能一直保持與試樣接觸。
5.2.6 定位棒
直徑8mm,長150mm,代替熾熱棒調整試樣的位置。
5.3 檢驗熾熱棒溫度的器具
秒表。
6 試樣
試樣長120mm~130mm,寬10mm±0.2mm,厚4mm±0.2mm。試樣表面應平整光滑,無氣泡、飛邊、毛刺等缺陷。每組試驗5個試樣。
每個試樣應在距其被燒端95mm處劃一標線。試樣可按GB/T 5471-2008、GB/T 9352-2008、GB/T 17037.1-1997和ISO 2818:1994所述方法以壓制、注塑或澆鑄模塑而成,或由模塑件、板材、管材或棒材機械加工而成。
除非另有規定或商定,試樣可不進行狀態調節。
7 操作
7.1 安裝試樣
將裝有熾熱棒的支架下傾離開正常位置,定位棒轉到試驗時熾熱棒所在的位置,安裝試樣,使夾具和試樣標線間的距離約為10mm,調節夾具和直立架,使試樣前端與定位棒接觸。
7.2 點燃
將熾熱棒加熱到955℃±15℃,并保持恒定,使熾熱棒和試樣前端接觸3min后離開試樣。用秒表記錄燃燒時間t,以s表示。
燃燒時間從火焰出現開始到火焰熄滅或火焰到達95mm標線止。
7.3 試驗終止條件
7.3.1 如果無可見火焰,則在熾熱棒移開30s后終止試驗。
7.3.2 如果火焰在到達95mm標線前熄滅,則在熾熱棒離開30s后終止試驗。
7.3.3 如果火焰到達95mm標線,則終止試驗并熄滅火焰。
7.4 測量
試驗終止后,測量試樣標線到燒損痕跡之間最小的未破壞長度,并記錄測量的未破壞長度最小值p,以mm表示。
將標線到燒損痕跡的最近距離作為未破壞長度。燒損痕跡包括完全和部分燒毀、燒焦和脆化的區域,不包括熏黑、玷污、變形或變色的區域,也不包括材料離開了熱源后收縮或熔融的區域。
8 結果表示
計算
——五個試樣的平均燃燒時間t,單位為秒(s);
——五個試樣的平均破壞長度L,單位為毫米(mm)。
對于單個試樣按式(1)計算:
以上為標準部分內容,如需看標準全文,請到相關授權網站購買標準正版。
-  
 IG541混合氣體滅火系統
              IG541混合氣體滅火系統:IG-541滅火系統采用的IG-541混合氣體滅火劑是由大氣層中的氮氣(N2)、氬氣(Ar)和二氧化碳(CO2)三種氣體分別以52%、40%、8%的比例混合而成的一種滅火劑 -  
 二氧化碳氣體滅火系統
              二氧化碳氣體滅火系統:二氧化碳氣體滅火系統由瓶架、滅火劑瓶組、泄漏檢測裝置、容器閥、金屬軟管、單向閥(滅火劑管)、集流管、安全泄漏裝置、選擇閥、信號反饋裝置、滅火劑輸送管、噴嘴、驅動氣體瓶組、電磁驅動 -  
 七氟丙烷滅火系統
              七氟丙烷(HFC—227ea)滅火系統是一種高效能的滅火設備,其滅火劑HFC—ea是一種無色、無味、低毒性、絕緣性好、無二次污染的氣體,對大氣臭氧層的耗損潛能值(ODP)為零,是鹵代烷1211、130 -  
 手提式干粉滅火器
              手提式干粉滅火器適滅火時,可手提或肩扛滅火器快速奔赴火場,在距燃燒處5米左右,放下滅火器。如在室外,應選擇在上風方向噴射。使用的干粉滅火器若是外掛式儲壓式的,操作者應一手緊握噴槍、另一手提起儲氣瓶上的 


