GB/T 8745-2001 紡織品 燃燒性能 織物表面燃燒時間的測定
- 發表時間:2022-11-25
 - 來源:共立消防
 - 人氣:
 
1 范圍
本標準規定了紡織織物表面燃燒時間的測定方法。
本標準適用于表面具有絨毛(例如起絨、毛圈、簇絨或類似表面)的紡織織物。
2 定義
本標準采用下列定義。
2.1 表面燃燒 surface burn
僅限于材料表面的燃燒。
2.2 表面燃燒時間 surface burning time在規定條件下,織物上的絨毛燃燒至規定距離所需的時間。
3 原理
在規定的試驗條件下,在接近頂部處點燃夾持于垂直板上的干燥試樣的起絨表面,測定火焰在織物表面向下蔓延至標記線的時間。
注:表面絨毛燃燒的火焰更容易向下或兩邊蔓延,而不易向上蔓延。這是因為燃燒產物的覆蓋作用,使火焰上方的絨毛不易燃燒。
4 試驗人員的健康和安全
紡織品的燃燒可能會產生影響操作人員健康的煙霧和有毒氣體,每一次試驗后應采取適當的措施,使其回復到所需的試驗條件。
5 設備和材料
5.1 試驗裝置的構成
燃燒產生的煙霧具有腐蝕性,試驗裝置應由不受煙霧侵蝕影響且易清潔的材料構成。
5.2 試樣夾持器
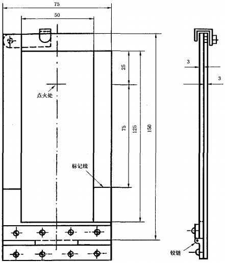
試樣夾持器由約150mm長,75mm寬和3mm厚的不銹鋼板(見圖1)及3mm厚的不銹鋼框架組成,使露出的受試織物表面為125mmx50mm。框架上應有標記線,其位于試樣點火處下方75mm的位置上。

圖1 試樣夾持器
5.3 氣體點火器
氣體點火器的描述見附錄A。
注:點火器的設計和尺寸的微小差異會影響火焰的形狀,從而影響到試驗結果。
5.4 氣體
工業用丁烷或丙烷或丁烷/丙烷混合氣體。
5.5 計時裝置
計時裝置用來控制和測量對試樣的點火時間(1.0s±0.1s)。
5.6 刷毛裝置
刷毛裝置的描述見附錄B。
5.7 烘箱
應能保持105℃±2℃的烘干溫度。
5.8 干燥器
應能儲存干燥試樣。
6 試驗場所
在試驗開始時,試驗場所的空氣流動速度應小于0.2m/s,試驗期間也不應受運轉著的機械設備的影響。試驗場所周圍應有足夠的空間,使其不致因氧濃度的減少而影響試驗。
7 試樣及調濕
7.1 尺寸
每塊試樣的尺寸為150mm×75mm,若織物的寬度小于75mm,則應剪取全幅進行測試。
7.2 數量
樣品的每個受試表面至少剪取8塊試樣,縱、橫向各4塊試樣。當織物的幅寬小于150mm時,可只測一個方向,即縱向。
7.3 織物的狀態
如果試樣不呈現表面燃燒時,可以另剪取試樣,按有關雙方協議進行清潔,這些試樣應標明“清潔后試樣”。
7.4 試樣的調濕
試樣在105℃±2C的烘箱中干燥不少于1h,然后在干燥器中至少冷卻30min,每一塊試樣從干燥器中取出后,應在1min內開始試驗。
8 試驗步驟
8.1 在溫度為10C~30℃和相對濕度為15%~80%的大氣條件下進行試驗。
8.2 點著點火器并預熱2min。垂直放置點火器,在微暗的光線下觀察火焰,調節火焰高度,使點火器頂端至黃色火焰尖端的距離為40mm±2mm。
8.3 放置點火器與垂直試樣夾持器表面成直角,使點火器的頂端離試樣表面的距離為15mm,并使火焰對準夾持器后板點火處標記,標出點火器與試樣夾持器已定的位置,以便可復得此位置
8.4 冷卻試樣夾持器,使其與環境溫度之差在5℃以內,將試樣夾在夾持器中,如果絨毛的方向為長度方向,則應使表面絨毛指向下方。
8.5 用附錄B中描述的刷毛裝置將試樣表面的絨毛順毛刷一次,再逆毛刷一次。
8.6 將裝有試樣的夾持器放回到8.3確定的位置上。
8.7 用計時裝置控制點火器對試樣點火1.0s±0.1s。
如果試樣從封閉干燥器中取出超過1min,試樣必須重新干燥。
8.8 觀察并記錄絨毛是否被點燃并使火焰蔓延,如果蔓延,則測量蔓延至點火處下方75mm處標記線的時間。
8.9 對其他試樣進行試驗,在每一次試驗前應確保試樣夾持器冷卻(見8.4)、清潔和干燥。
8.10 如果8塊試樣中僅一塊試樣表現為表面燃燒,那么另取8塊試樣試驗。
9 試驗報告
該試驗報告應包括下列內容:
a)試驗是按本標準進行的,如有變動要說明細節;
b)試樣的描述;
c)如果試樣寬度小于75mm,應注明寬度;
d)試樣的狀態:即“原樣”或“清潔后試樣”,使用的清潔方法;
e)試樣的絨毛是否被點燃;是否使火焰蔓延;
f)表面絨毛的火焰是否在到達標記線前熄滅,未到達標記線的試樣數量;
g)每個試樣表面絨毛燃燒到標記線的時間,織物的受試方向,測得的最小值(如果按8.10重新試驗后,僅有一個試樣燃燒到達標記線,則記為無表面燃燒時間)。如果表面絨毛在點火期間燃燒到標記線,那么表面燃燒時間記為小于1s;
h)試驗時的環境溫度和相對濕度;
i)試驗日期及試驗人員;
j)注明:試驗結果不適用于評定織物在實際火災中所受的危害。
以上為標準部分內容,如需看標準全文,請到相關授權網站購買標準正版。
-  
 IG541混合氣體滅火系統
              IG541混合氣體滅火系統:IG-541滅火系統采用的IG-541混合氣體滅火劑是由大氣層中的氮氣(N2)、氬氣(Ar)和二氧化碳(CO2)三種氣體分別以52%、40%、8%的比例混合而成的一種滅火劑 -  
 二氧化碳氣體滅火系統
              二氧化碳氣體滅火系統:二氧化碳氣體滅火系統由瓶架、滅火劑瓶組、泄漏檢測裝置、容器閥、金屬軟管、單向閥(滅火劑管)、集流管、安全泄漏裝置、選擇閥、信號反饋裝置、滅火劑輸送管、噴嘴、驅動氣體瓶組、電磁驅動 -  
 七氟丙烷滅火系統
              七氟丙烷(HFC—227ea)滅火系統是一種高效能的滅火設備,其滅火劑HFC—ea是一種無色、無味、低毒性、絕緣性好、無二次污染的氣體,對大氣臭氧層的耗損潛能值(ODP)為零,是鹵代烷1211、130 -  
 手提式干粉滅火器
              手提式干粉滅火器適滅火時,可手提或肩扛滅火器快速奔赴火場,在距燃燒處5米左右,放下滅火器。如在室外,應選擇在上風方向噴射。使用的干粉滅火器若是外掛式儲壓式的,操作者應一手緊握噴槍、另一手提起儲氣瓶上的 


