GB 12514.4-2006 消防接口 第4部分:螺紋式消防接口型式和基本參數
- 發表時間:2022-11-06
- 來源:共立消防
- 人氣:
1 范圍
本部分規定了螺紋式消防接口的型式、規格和基本參數。
本部分適用于消防供水系統中的螺紋式消防吸水管接口、悶蓋和同型接口(以下簡稱接口)。
2 規范性引用文件
下列文件中的條款通過GB12514的本部分的引用而成為本部分的條款。凡是注日期的引用文件,其隨后所有的修改單(不包括勘誤的內容)或修訂版均不適用于本部分,然而,鼓勵根據本部分達成協議的各方研究是否可使用這些文件的最新版本。凡是不注日期的引用文件,其最新版本適用于本部分。
GB/T 1804-2000 一般公差 未注公差的線性和角度尺寸的公差
3 接口的型式和規格
接口的型式規格及適用介質見表1。
表 1
接口型式 | 規 格 | 適用介質 | ||
名 稱 | 代 號 | 公稱通徑/mm | 公稱壓力/MPa | |
吸水管接口 | KG | 90、100、125、150 | 1.0 1.6 | 水 |
悶蓋 | KA | |||
同型接口 | KT | |||
4 接口的結構
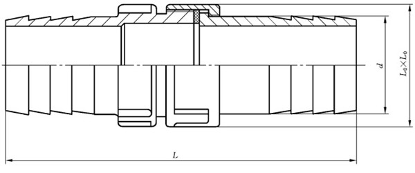
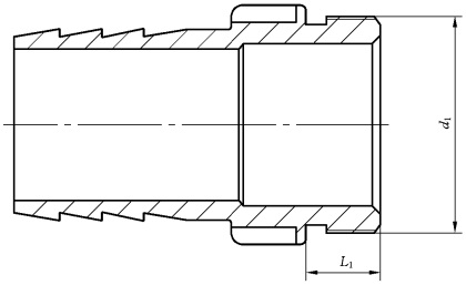
接口的結構應符合圖1~圖3的規定。
5 基本尺寸
5.1 各種接口的基本尺寸及偏差應符合表2的規定。未注尺寸應符合GB/T 1804-2000粗糙c級的要求。
5.2 標記方法

示例:公稱壓力為1.0 MPa、公稱通徑為100mm的吸水管接口標記為KG100。

a)總圖

b)雄接頭
圖1 KG型吸水管接口

圖2 KA型悶蓋

圖3 KT型同型接口
表2 螺紋式消防接口的基本尺寸表 單位為毫米
公稱通徑 | 90 | 100 | 125 | 150 | |
d | KG | 103 | 113 | 122.5 | 163 |
P | KA KG KT | M125×6 | M150×6 | M170×6 | |
L | KG | ≥310 | ≥315 | ≥320 | ≥360 |
KA | ≥59 | ≥59 | ≥59 | ≥59 | |
KT | ≥113 | ≥113 | ≥113 | ≥113 | |
L | KA KG KT | 24 | |||
Lo | 140×140 | 166×166 | 190×190 | ||
以上為標準部分內容,如需看標準全文,請到相關授權網站購買標準正版。
-
IG541混合氣體滅火系統
IG541混合氣體滅火系統:IG-541滅火系統采用的IG-541混合氣體滅火劑是由大氣層中的氮氣(N2)、氬氣(Ar)和二氧化碳(CO2)三種氣體分別以52%、40%、8%的比例混合而成的一種滅火劑 -
二氧化碳氣體滅火系統
二氧化碳氣體滅火系統:二氧化碳氣體滅火系統由瓶架、滅火劑瓶組、泄漏檢測裝置、容器閥、金屬軟管、單向閥(滅火劑管)、集流管、安全泄漏裝置、選擇閥、信號反饋裝置、滅火劑輸送管、噴嘴、驅動氣體瓶組、電磁驅動 -
七氟丙烷滅火系統
七氟丙烷(HFC—227ea)滅火系統是一種高效能的滅火設備,其滅火劑HFC—ea是一種無色、無味、低毒性、絕緣性好、無二次污染的氣體,對大氣臭氧層的耗損潛能值(ODP)為零,是鹵代烷1211、130 -
手提式干粉滅火器
手提式干粉滅火器適滅火時,可手提或肩扛滅火器快速奔赴火場,在距燃燒處5米左右,放下滅火器。如在室外,應選擇在上風方向噴射。使用的干粉滅火器若是外掛式儲壓式的,操作者應一手緊握噴槍、另一手提起儲氣瓶上的


